还记得江东路旁正在新建一幢青创大厦,即海联新材料总部大楼。近日,青创大厦已经建到16层以上,总的是99.5米高22层。让我们一起先来看看工程概况:该地块位于江东路与四环路旁边,周边已经建有多个楼盘,如阳光海岸、江与城、云熙望府、求是家园等楼盘,与刚建成不久的曹娥江人行桥距离也很近,饭后散步可以走着去城市阳台,及可以去大通E享城购物。
效果图
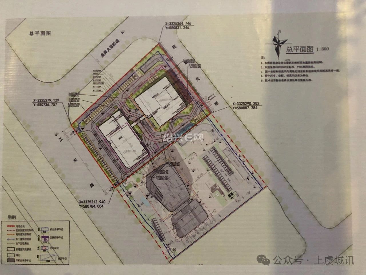
该项目竣工日期为2026年9月20日,华汇工程设计。总平面图
根据设计规划方案图中显示,将建设一幢高99.95米22层的办公主楼和一幢高19.25米4层的商业用楼,还配建地下停车场和绿化景观等。



