登录
第102期 | 荣盛华府500方现代美式,装成理想型美家
E网装修顾问
25-12-17 09:05 绍兴
楼主
第102期-Xiao Bian Tan Jia-

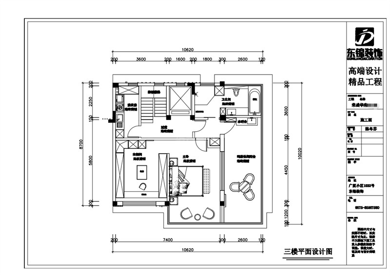
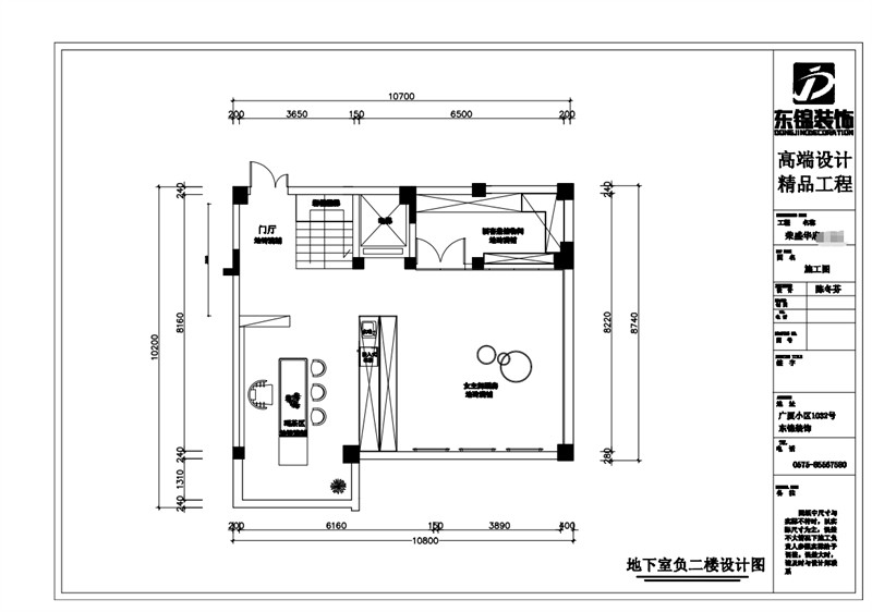
项目详情小区:荣盛华府面积:500风格:现代美式装修方式:半包52.8w装修费用:500w装修公司:东锦装饰

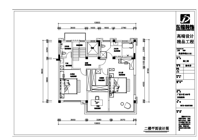
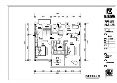
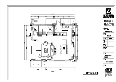
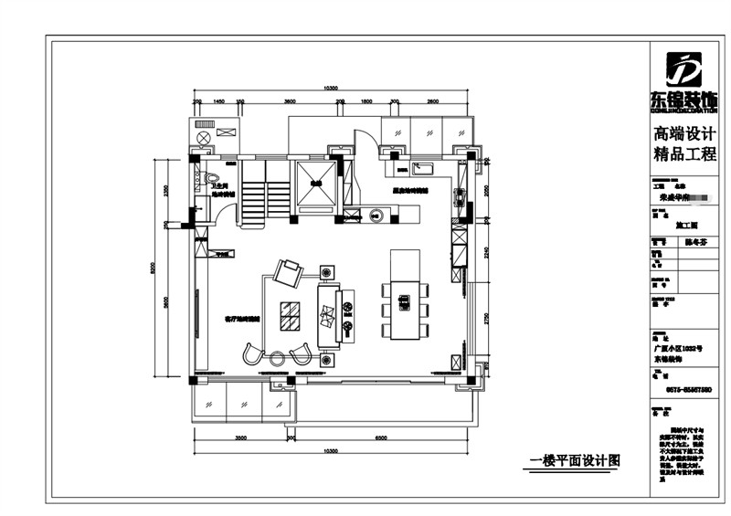
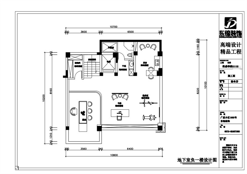
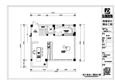
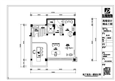
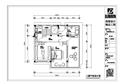
平面图:











效果图:













































👆完工实拍视频

入户花园傍晚的天光正好洒在新落地的院子里石砖温软,伞桌候风,抬眼是家 松弛感就长在院子里



玄关、楼梯入户是全屋无主灯的灯光设计散漫的灯光柔和地照亮了整个家玻璃扶手衬得厅里更亮堂楼梯下也做了储物鞋柜兼具实用与美观







拐角处的巧思



客餐厅客厅顶边灯线勾出利落轮廓暖棕沙发撞白岛台,石纹自带质感餐厅正对着大落地窗,入目是新建的小院光和风裹着烟火气钻进来







玄关水滴龙头充满设计感



开放式厨房

开放式厨房使用回型设计

更适配厨房动线



水吧台使用嵌入式灯光冰箱、水槽、储物酒柜做了一体化嵌入布局和实用性上都完美适配



地下室办公区



水吧



挑空设计打造宽敞空间感水墨背景和玻璃云朵灯自带氛围感喝茶品茗更具禅意





地下室功能区

健身区与瑜伽房







卫生间

与效果图几乎百分百的复刻











洗衣房





衣帽间美式轻奢设计储物与展示并重







卧室









阳台茶吧属于自己的静谧暖阳空间



顶楼观景台

将 “浪漫” 焊在日落里







本次探家之旅就这么结束了如果你也想找东锦装修那就抓紧来联系小编哦~

回复 
正序看 倒序看 收藏它 发新帖
E网装修顾问楼主
2025-12-17 10:23 绍兴
1楼
第101期 | 140方现代灰色系,一家四口幸福的家https://www.e0575.cn/read.php?tid=11857358

第100期:140方新中式,一个温暖的家~https://www.e0575.cn/read.php?tid=11855650

第99期:小空间大利用!80方学区房,一家三口住得舒适愉快~https://www.e0575.cn/read.php?tid=11853580

第98期:140方现代灰色轻奢系全包31.5w,干净又清爽~https://www.e0575.cn/read.php?tid=11822871&ds=1#tpc

第97期: 橡木染色的五层排屋原木风,温馨舒适现代感十足~https://www.e0575.cn/read.php?tid=11808868

第96期:用色超大胆的糖果色的年轻人的婚房~https://www.e0575.cn/read.php?tid=11781240

第95期:125方现代轻奢风全包28万~奢意十足~https://www.e0575.cn/read.php?tid=11771294&ds=1#tpc

第94期:70平原木现代风温馨小家,细节满满,心意满满~ https://www.e0575.cn/read.php?tid=11746015&ds=1#tpc

第93期:109方甜甜的奶油风,来了就不想走,重点仅花16.5万!https://www.e0575.cn/read.php?tid=11743622

第92期:半包10万打造现代轻奢舒适的家~https://www.e0575.cn/read.php?tid=11741601

第91期:25.6万拎包入住,打造106方现代风格四室小屋!https://www.e0575.cn/read.php?tid=11732900&ds=1#tpc

第90期:极具温馨轻奢的130方小屋,来了就爱上系列~ https://www.e0575.cn/read.php?tid=11731443

第89期:半包13万打造现代轻奢的具有格调的天工名爵府138方https://www.e0575.cn/read.php?tid=11730148

第88期:115方三居室精装改造现代轻奢风仅需15万!https://www.e0575.cn/read.php?tid=11729158

第87期:府山西路上的这个学区房,仅仅只花了13万就改造完成!https://www.e0575.cn/read.php?tid=11727804

第86期:118方兴望轩现代轻奢全包仅19.5万!https://www.e0575.cn/read.php?tid=11723483

第85期:镜湖90方湖风雅苑15.5万改造暖暖的奶油风~https://www.e0575.cn/read.php?tid=11713804&ds=1&page=1&toread=1#tpc

第84期:

第83期:极简大气的200方灰色大平层~努力做到效果图的一比一还原!https://www.e0575.cn/read.php?tid=11689423&ds=1#tpc

第82期:拥有钢琴的清爽薄荷轻奢小家~https://www.e0575.cn/read.php?tid=11670433

第81期:随处可见爱马仕橙店点缀空间的140方轻奢风~https://www.e0575.cn/read.php?tid=11689442&ds=1&page=1&toread=1#tpc

第80期:400方雅奢排屋,一个充满新中式的家https://www.e0575.cn/read.php?tid=11666034&ds=1#tpc

第79期:140平温柔满满的意式极简风~打造科技感十足的小家~https://www.e0575.cn/read.php?tid=11664816&ds=1#tpc

第78期:干净清爽极具现代极简的135方单身小屋~https://www.e0575.cn/read.php?tid=11640881

第77期:大大的落地窗,现代极简又轻奢的110方小屋,忍不住让大家瞅瞅https://www.e0575.cn/read.php?tid=11618236&ds=1&page=1&toread=1#tpc

第76期:120方现代轻奢风,浪漫即是雅致https://www.e0575.cn/read.php?tid=11602345&ds=1#tpc

第75期:年轻人喜欢的大沙发,大地毯来咯~简单又极致,重要的是装修仅25whttps://www.e0575.cn/read.php?tid=11597162

第74期:半包55万打造610方新中式偏轻奢,书意满满https://www.e0575.cn/read.php?tid=11574623&ds=1#tpc

第73期:180方法式轻奢大平层,温馨满满~https://www.e0575.cn/read.php?tid=11571375&ds=1&page=1&toread=1#tpc

第72期:320方轻松休闲日式风https://www.e0575.cn/read.php?tid=11570706&ds=1&page=1&toread=1#tpc

第71期:500方小美稽山庄园,丰富优雅的精致生活~https://www.e0575.cn/read.php?tid=11567336

第70期:京联观湖255方新中式 四壁浮影 有暗香盈https://mp.weixin.qq.com/s/e7JMCcmPHxCqjQ3qwhNqcA

第69期:380方极具现代感排屋展示,尽显轻奢https://www.e0575.cn/read.php?tid=11563103

第68期:柔情似水,佳居如梦!一家三代人的天堂https://www.e0575.cn/read.php?tid=11562130

第67期:23万打造87方温柔系现代风https://www.e0575.cn/read.php?tid=11556862&ds=1#tpc

第66期 : 暖色调现代风格,尽显温柔https://www.e0575.cn/read.php?tid=11552401

第65期:探访格格家大城小院叠排新中式美学,感受小资生活! https://www.e0575.cn/read.php?tid=11543923&ds=1#tpc

第64期 :金地五期135方现代精致生活https://www.e0575.cn/read.php?tid=11521185&ds=1#tpc

第63期 : 群贤府一家四口的现代轻奢风小家~https://www.e0575.cn/read.php?tid=11509074

第62期:书香,茶香,花香,咖啡香……一位退休教师亲手打造的https://www.e0575.cn/read.php?tid=11482151

第61期:520平法式别墅全曝光!!家庭影院,舞蹈房…应有尽有https://www.e0575.cn/read.php?tid=11473736

第60期:现代偏北欧系轻奢风,打造只属于自己的四口温馨之家https://www.e0575.cn/read.php?tid=11470634&ds=1&page=1&toread=1#175741265

第59期:现代原木系的极简风,添加懒人因素,总有你喜欢的点https://www.e0575.cn/read.php?tid=11470453&ds=1&page=e#a

第58期:小两口的轻奢风的小家,优雅又温馨!https://www.e0575.cn/read.php?tid=11462604&ds=1#tpc

第57期:灰色系现代风,去繁从简的家装,惬意从容的生活~https://www.e0575.cn/read.php?tid=11453760

第56期:幸府装饰出品现代灰色系140方~https://www.e0575.cn/read.php?tid=11446986&ds=1&page=1&toread=1#tpc

第55期:良工出品原木新中式风格,禅意净化心灵的世界!https://www.e0575.cn/read.php?tid=11444473&ds=1&page=1&toread=1#tpc

第54期:140方灰色系新中式风格!高级灰的另一种展现~https://www.e0575.cn/read.php?tid=11443305&ds=1&page=1&toread=1#tpc

第53期:原木现代北欧风,打造轻奢小家!https://www.e0575.cn/read.php?tid=11429151&ds=1&page=1&toread=1#tpc

第52期:26万打造全屋现代北欧风!干净清爽,一家三口刚刚好~https://www.e0575.cn/read.php?tid=11414588&ds=1&page=1&toread=1#tpc

第51期:携手实鼎装饰,36万打造欧式家居~https://www.e0575.cn/read.php?tid=11376651&ds=1&page=1&toread=1#tpc

第50期:127方原木现代风~满满的生活感!https://www.e0575.cn/read.php?tid=11369509&ds=1&page=1&toread=1#tpc

第49期:晴园215方现代轻奢风~低调中彰显奢华!!https://www.e0575.cn/read.php?tid=11363978&ds=1&page=1&toread=1#tpc

第48期:160平美式小家,有你,家才更美!http://www.e0575.cn/read.php?tid=11307005&ds=1&page=1&toread=1#tpc

第47期:生活需要低调,却不失精致!http://www.e0575.cn/read.php?tid=11304139

第46期:森海豪庭北欧混搭,小资生活从细节开始http://www.e0575.cn/read.php?tid=11295506&ds=1&page=1&toread=1#tpc

第45期:小家需要精致!生活需要仪式感!http://www.e0575.cn/read.php?tid=11285122&ds=1&page=1&toread=1#tpc

第44期:看一家全屋集成吊顶+集成墙面装出来的效果是怎么样的!!http://www.e0575.cn/read.php?tid=11275133

第43期:低调中的奢华,体验醇正美式~http://www.e0575.cn/read.php?tid=11257601&ds=1#tpc

第42期:锦水湾2层简美小屋,享受美好人生!http://www.e0575.cn/read.php?tid=11252087&ds=1&page=1&toread=1#tpc

第41期:百合花园 200方大平层 最潮北欧风!!http://www.e0575.cn/read.php?tid=11170303

第40期:香湖岛 160方大平层 全定制任性人生!http://www.e0575.cn/read.php?tid=11163136

第39期:曦之湖 115方 全包15万温馨小美风~http://www.e0575.cn/read.php?tid=11159873

第38期:观澜豪庭 141方 简约宜居,改善型首选!http://www.e0575.cn/read.php?tid=11157365

第37期:御河湾141方四房两厅,全实木家具,环保材料~彰显低调奢华~ http://www.e0575.cn/read.php?tid=11151999

第36期:现代与前卫想结合,装修趋势新理念~http://www.e0575.cn/read.php?tid=11134343&ds=1#tpc

第35期:金色水岸典雅奢华欧式,开启璀璨新征程~http://www.e0575.cn/read.php?tid=11131393

第34期:柯桥新贵,大平层,50万拎包入住!!http://www.e0575.cn/read.php?tid=11124409&ds=1#tpc

第33期:惬意生活,尽享简欧混搭璀璨人生~http://www.e0575.cn/read.php?tid=11106919&ds=1#tpc

第32期:别有洞天,二手房也可以惊艳绝伦!!http://www.e0575.cn/read.php?tid=11096903

第31期:舒适大平层,细节决定成败!http://www.e0575.cn/read.php?tid=11088983

第30期:未来主流,为北欧工业混搭风打call~~http://www.e0575.cn/read.php?tid=11072320&ds=1#tpc

第29期:洋气港风,宽敞大宅灵动开启~http://www.e0575.cn/read.php?tid=11066057

第28期:美式紧凑型两居室,美学与品质相并存~ http://www.e0575.cn/read.php?tid=11039261

第27期:城市中心1600方沿河别墅,无与伦比、至尊享受!!!http://www.e0575.cn/read.php?tid=11036328&ds=1#tpc

第25期:80后三室两厅,整体造价7.81万!!http://www.e0575.cn/read.php?tid=11032638

第24期:市中心观景别墅——翡翠园。现代港风,简约不凡。http://www.e0575.cn/read.php?tid=10974137&ds=1#tpc

第23期:三世同堂,宽敞大四居——百年经典2017开年第一发:http://www.e0575.cn/read.php?tid=10963133

第22期:安生设计|绍兴龙湖原著别墅|ANSWER DESIGN:http://www.e0575.cn/read.php?tid=5459574

第21期:又见新中式,城西第一高,带装逼带你飞,138方半包12.3万:http://www.e0575.cn/read.php?tid=5438360

第20期:贵胄之地,传世名邸——天御花园:http://www.e0575.cn/read.php?tid=5431180

第19期:地中海四季风情庄园:http://www.e0575.cn/read.php?tid=5424978

第18期:御景华庭北欧美式,周杰伦都忍不住转了!:http://www.e0575.cn/read.php?tid=5414729

第17期:香湖岛170平 欧美混搭+大气磅礴:http://www.e0575.cn/read.php?tid=5359343

第16期:镜湖百合花园160平欧式,三房一厅一厨两卫含衣帽间:http://www.e0575.cn/read.php?tid=5395875

第15期:绍兴天下花园140平欧式新古典,列品牌细数点滴经典!:http://www.e0575.cn/read.php?tid=5388985

第14期:金色水岸170平小美 | 天然木、石质朴纹路,别有格调:http://www.e0575.cn/read.php?tid=5328809

第13期❀简美小清新,观澜豪庭85平小户型半包8万❀:http://www.e0575.cn/read.php?tid=5314617

第12期:观澜豪庭128平20W装修 | 现代简约风:http://www.e0575.cn/read.php?tid=5281758

第11期:御景华庭141平欧式,别样古典雅致(内含清单获取方式):http://www.e0575.cn/read.php?tid=5274181

第10期:香湖岛141平16万半包欧式新古典 | 色搭好“色”好色好色!:http://www.e0575.cn/read.php?tid=5269279

第9期:海量图!恒联锦园三百多平的跃层全包|乡村软装混搭美学:http://www.e0575.cn/read.php?tid=5259347

第8期:江湾绿园大户型180平22万半包 |软装搭出欧式新古典 揭秘总费用:http://www.e0575.cn/read.php?tid=5250448

第7期:❀坤和山水人家享现代奢华❀:http://www.e0575.cn/read.php?tid=5209818

第6期:山水名家175平13万半包演绎新古典:http://www.e0575.cn/read.php?tid=5196713

第5期:山水名家173方美式风格共50万全包:http://www.e0575.cn/read.php?tid=5180619

第4期:岑草园240方带屋顶花园美式乡村共55万/ 缕缕春风贴意境:http://www.e0575.cn/read.php?tid=5122713

第3期:赞成香林140方40万含地暖和新风系统 | 北欧混搭新古典:http://www.e0575.cn/read.php?tid=5103387

第2期:长江越领140方23万全包 | 我迷何以笙箫默的北欧装修风:http://www.e0575.cn/read.php?tid=5075910

第1期:鼎盛世家141方90万欧式新古典风 | 路遇宫廷式的奢华:http://www.e0575.cn/read.php?tid=5069984
奇葩的小王
2025-12-18 08:30 绍兴
2楼
豪宅啊
盘若
2025-12-18 08:31 绍兴
3楼
装得很不错
思念寻回悲伤
2025-12-18 08:31 绍兴
4楼
房子大就是好,各种功能区都有了
Rebelok
2025-12-18 08:32 绍兴
5楼
路过,帮顶
回复内容:
首页
论坛
我的