登录
首页
论坛导航
家装帮忙团
正文
第101期 | 140方现代灰色系,一家四口幸福的家
蛋蛋蛋!
25-12-09 15:18 绍兴
楼主
第101期-Xiao Bian Tan Jia-
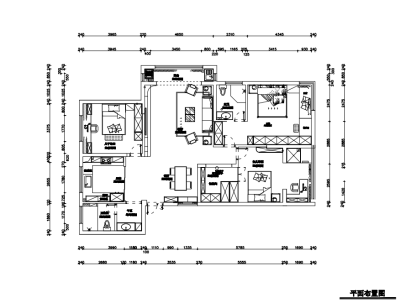
项目详情小区:盛世钱门面积:140风格:现代风格装修方式:全包装修费用:39w装修公司:东锦装饰平面图:
效果图:
入户就能看见洗手台方便进门之后直接洗去外面的细菌
洗手间和卫生间的干湿分离既做到了空间的利用率高也避免了早上早起抢卫生间的烦恼
厨房采用U型设计动线的设计更方便了家里人在厨房烹制美味的食物
客餐厅之间是没有隔断的所以整个空间在视觉效果上会更大
整个空间采用浅灰色系只用两种色系营造空间的轻奢感
主卧是带内卫、衣帽间和梳妆台的用胡桃木色来点亮整个空间
女儿房主要用粉色和白色来交相辉映非常的温柔与温馨
儿子房则是以深灰色系为主色系非常的有男孩子的气息
本次探家之旅就这么结束了添加小编微信,安排商家联系你哦~
回复
正序看
倒序看
收藏它
发新帖
蛋蛋蛋!
楼主
2025-12-09 15:28 绍兴
1楼
第100期:140方新中式,一个温暖的家~
https://www.e0575.cn/read.php?tid=11855650
第99期:小空间大利用!80方学区房,一家三口住得舒适愉快~
https://www.e0575.cn/read.php?tid=11853580
第98期:140方现代灰色轻奢系全包31.5w,干净又清爽~
https://www.e0575.cn/read.php?tid=11822871&ds=1#tpc
第97期: 橡木染色的五层排屋原木风,温馨舒适现代感十足~
https://www.e0575.cn/read.php?tid=11808868
第96期:用色超大胆的糖果色的年轻人的婚房~
https://www.e0575.cn/read.php?tid=11781240
第95期:125方现代轻奢风全包28万~奢意十足~
https://www.e0575.cn/read.php?tid=11771294&ds=1#tpc
第94期:70平原木现代风温馨小家,细节满满,心意满满~
https://www.e0575.cn/read.php?tid=11746015&ds=1#tpc
第93期:109方甜甜的奶油风,来了就不想走,重点仅花16.5万!
https://www.e0575.cn/read.php?tid=11743622
第92期:半包10万打造现代轻奢舒适的家~
https://www.e0575.cn/read.php?tid=11741601
第91期:25.6万拎包入住,打造106方现代风格四室小屋!
https://www.e0575.cn/read.php?tid=11732900&ds=1#tpc
第90期:极具温馨轻奢的130方小屋,来了就爱上系列~
https://www.e0575.cn/read.php?tid=11731443
第89期:半包13万打造现代轻奢的具有格调的天工名爵府138方
https://www.e0575.cn/read.php?tid=11730148
第88期:115方三居室精装改造现代轻奢风仅需15万!
https://www.e0575.cn/read.php?tid=11729158
第87期:府山西路上的这个学区房,仅仅只花了13万就改造完成!
https://www.e0575.cn/read.php?tid=11727804
第86期:118方兴望轩现代轻奢全包仅19.5万!
https://www.e0575.cn/read.php?tid=11723483
第85期:镜湖90方湖风雅苑15.5万改造暖暖的奶油风~
https://www.e0575.cn/read.php?tid=11713804&ds=1&page=1&toread=1#tpc
第84期:第83期:极简大气的200方灰色大平层~努力做到效果图的一比一还原!
https://www.e0575.cn/read.php?tid=11689423&ds=1#tpc
第82期:拥有钢琴的清爽薄荷轻奢小家~
https://www.e0575.cn/read.php?tid=11670433
第81期:随处可见爱马仕橙店点缀空间的140方轻奢风~
https://www.e0575.cn/read.php?tid=11689442&ds=1&page=1&toread=1#tpc
第80期:400方雅奢排屋,一个充满新中式的家
https://www.e0575.cn/read.php?tid=11666034&ds=1#tpc
第79期:140平温柔满满的意式极简风~打造科技感十足的小家~
https://www.e0575.cn/read.php?tid=11664816&ds=1#tpc
第78期:干净清爽极具现代极简的135方单身小屋~
https://www.e0575.cn/read.php?tid=11640881
第77期:大大的落地窗,现代极简又轻奢的110方小屋,忍不住让大家瞅瞅
https://www.e0575.cn/read.php?tid=11618236&ds=1&page=1&toread=1#tpc
第76期:120方现代轻奢风,浪漫即是雅致
https://www.e0575.cn/read.php?tid=11602345&ds=1#tpc
第75期:年轻人喜欢的大沙发,大地毯来咯~简单又极致,重要的是装修仅25w
https://www.e0575.cn/read.php?tid=11597162
第74期:半包55万打造610方新中式偏轻奢,书意满满
https://www.e0575.cn/read.php?tid=11574623&ds=1#tpc
第73期:180方法式轻奢大平层,温馨满满~
https://www.e0575.cn/read.php?tid=11571375&ds=1&page=1&toread=1#tpc
第72期:320方轻松休闲日式风
https://www.e0575.cn/read.php?tid=11570706&ds=1&page=1&toread=1#tpc
第71期:500方小美稽山庄园,丰富优雅的精致生活~
https://www.e0575.cn/read.php?tid=11567336
第70期:京联观湖255方新中式 四壁浮影 有暗香盈
https://mp.weixin.qq.com/s/e7JMCcmPHxCqjQ3qwhNqcA
第69期:380方极具现代感排屋展示,尽显轻奢
https://www.e0575.cn/read.php?tid=11563103
第68期:柔情似水,佳居如梦!一家三代人的天堂
https://www.e0575.cn/read.php?tid=11562130
第67期:23万打造87方温柔系现代风
https://www.e0575.cn/read.php?tid=11556862&ds=1#tpc
第66期 : 暖色调现代风格,尽显温柔
https://www.e0575.cn/read.php?tid=11552401
第65期:探访格格家大城小院叠排新中式美学,感受小资生活!
https://www.e0575.cn/read.php?tid=11543923&ds=1#tpc
第64期 :金地五期135方现代精致生活
https://www.e0575.cn/read.php?tid=11521185&ds=1#tpc
第63期 : 群贤府一家四口的现代轻奢风小家~
https://www.e0575.cn/read.php?tid=11509074
第62期:书香,茶香,花香,咖啡香……一位退休教师亲手打造的
https://www.e0575.cn/read.php?tid=11482151
第61期:520平法式别墅全曝光!!家庭影院,舞蹈房…应有尽有
https://www.e0575.cn/read.php?tid=11473736
第60期:现代偏北欧系轻奢风,打造只属于自己的四口温馨之家
https://www.e0575.cn/read.php?tid=11470634&ds=1&page=1&toread=1#175741265
第59期:现代原木系的极简风,添加懒人因素,总有你喜欢的点
https://www.e0575.cn/read.php?tid=11470453&ds=1&page=e#a
第58期:小两口的轻奢风的小家,优雅又温馨!
https://www.e0575.cn/read.php?tid=11462604&ds=1#tpc
第57期:灰色系现代风,去繁从简的家装,惬意从容的生活~
https://www.e0575.cn/read.php?tid=11453760
第56期:幸府装饰出品现代灰色系140方~
https://www.e0575.cn/read.php?tid=11446986&ds=1&page=1&toread=1#tpc
第55期:良工出品原木新中式风格,禅意净化心灵的世界!
https://www.e0575.cn/read.php?tid=11444473&ds=1&page=1&toread=1#tpc
第54期:140方灰色系新中式风格!高级灰的另一种展现~
https://www.e0575.cn/read.php?tid=11443305&ds=1&page=1&toread=1#tpc
第53期:原木现代北欧风,打造轻奢小家!
https://www.e0575.cn/read.php?tid=11429151&ds=1&page=1&toread=1#tpc
第52期:26万打造全屋现代北欧风!干净清爽,一家三口刚刚好~
https://www.e0575.cn/read.php?tid=11414588&ds=1&page=1&toread=1#tpc
第51期:携手实鼎装饰,36万打造欧式家居~
https://www.e0575.cn/read.php?tid=11376651&ds=1&page=1&toread=1#tpc
第50期:127方原木现代风~满满的生活感!
https://www.e0575.cn/read.php?tid=11369509&ds=1&page=1&toread=1#tpc
第49期:晴园215方现代轻奢风~低调中彰显奢华!!
https://www.e0575.cn/read.php?tid=11363978&ds=1&page=1&toread=1#tpc
第48期:160平美式小家,有你,家才更美!
http://www.e0575.cn/read.php?tid=11307005&ds=1&page=1&toread=1#tpc
第47期:生活需要低调,却不失精致!
http://www.e0575.cn/read.php?tid=11304139
第46期:森海豪庭北欧混搭,小资生活从细节开始
http://www.e0575.cn/read.php?tid=11295506&ds=1&page=1&toread=1#tpc
第45期:小家需要精致!生活需要仪式感!
http://www.e0575.cn/read.php?tid=11285122&ds=1&page=1&toread=1#tpc
第44期:看一家全屋集成吊顶+集成墙面装出来的效果是怎么样的!!
http://www.e0575.cn/read.php?tid=11275133
第43期:低调中的奢华,体验醇正美式~
http://www.e0575.cn/read.php?tid=11257601&ds=1#tpc
第42期:锦水湾2层简美小屋,享受美好人生!
http://www.e0575.cn/read.php?tid=11252087&ds=1&page=1&toread=1#tpc
第41期:百合花园 200方大平层 最潮北欧风!!
http://www.e0575.cn/read.php?tid=11170303
第40期:香湖岛 160方大平层 全定制任性人生!
http://www.e0575.cn/read.php?tid=11163136
第39期:曦之湖 115方 全包15万温馨小美风~
http://www.e0575.cn/read.php?tid=11159873
第38期:观澜豪庭 141方 简约宜居,改善型首选!
http://www.e0575.cn/read.php?tid=11157365
第37期:御河湾141方四房两厅,全实木家具,环保材料~彰显低调奢华~
http://www.e0575.cn/read.php?tid=11151999
第36期:现代与前卫想结合,装修趋势新理念~
http://www.e0575.cn/read.php?tid=11134343&ds=1#tpc
第35期:金色水岸典雅奢华欧式,开启璀璨新征程~
http://www.e0575.cn/read.php?tid=11131393
第34期:柯桥新贵,大平层,50万拎包入住!!
http://www.e0575.cn/read.php?tid=11124409&ds=1#tpc
第33期:惬意生活,尽享简欧混搭璀璨人生~
http://www.e0575.cn/read.php?tid=11106919&ds=1#tpc
第32期:别有洞天,二手房也可以惊艳绝伦!!
http://www.e0575.cn/read.php?tid=11096903
第31期:舒适大平层,细节决定成败!
http://www.e0575.cn/read.php?tid=11088983
第30期:未来主流,为北欧工业混搭风打call~~
http://www.e0575.cn/read.php?tid=11072320&ds=1#tpc
第29期:洋气港风,宽敞大宅灵动开启~
http://www.e0575.cn/read.php?tid=11066057
第28期:美式紧凑型两居室,美学与品质相并存~
http://www.e0575.cn/read.php?tid=11039261
第27期:城市中心1600方沿河别墅,无与伦比、至尊享受!!!
http://www.e0575.cn/read.php?tid=11036328&ds=1#tpc
第25期:80后三室两厅,整体造价7.81万!!
http://www.e0575.cn/read.php?tid=11032638
第24期:市中心观景别墅——翡翠园。现代港风,简约不凡。
http://www.e0575.cn/read.php?tid=10974137&ds=1#tpc
第23期:三世同堂,宽敞大四居——百年经典2017开年第一发:
http://www.e0575.cn/read.php?tid=10963133
第22期:安生设计|绍兴龙湖原著别墅|ANSWER DESIGN:
http://www.e0575.cn/read.php?tid=5459574
第21期:又见新中式,城西第一高,带装逼带你飞,138方半包12.3万:
http://www.e0575.cn/read.php?tid=5438360
第20期:贵胄之地,传世名邸——天御花园:
http://www.e0575.cn/read.php?tid=5431180
第19期:地中海四季风情庄园:
http://www.e0575.cn/read.php?tid=5424978
第18期:御景华庭北欧美式,周杰伦都忍不住转了!:
http://www.e0575.cn/read.php?tid=5414729
第17期:香湖岛170平 欧美混搭+大气磅礴:
http://www.e0575.cn/read.php?tid=5359343
第16期:镜湖百合花园160平欧式,三房一厅一厨两卫含衣帽间:
http://www.e0575.cn/read.php?tid=5395875
第15期:绍兴天下花园140平欧式新古典,列品牌细数点滴经典!:
http://www.e0575.cn/read.php?tid=5388985
第14期:金色水岸170平小美 | 天然木、石质朴纹路,别有格调:
http://www.e0575.cn/read.php?tid=5328809
第13期❀简美小清新,观澜豪庭85平小户型半包8万❀:
http://www.e0575.cn/read.php?tid=5314617
第12期:观澜豪庭128平20W装修 | 现代简约风:
http://www.e0575.cn/read.php?tid=5281758
第11期:御景华庭141平欧式,别样古典雅致(内含清单获取方式):
http://www.e0575.cn/read.php?tid=5274181
第10期:香湖岛141平16万半包欧式新古典 | 色搭好“色”好色好色!:
http://www.e0575.cn/read.php?tid=5269279
第9期:海量图!恒联锦园三百多平的跃层全包|乡村软装混搭美学:
http://www.e0575.cn/read.php?tid=5259347
第8期:江湾绿园大户型180平22万半包 |软装搭出欧式新古典 揭秘总费用:
http://www.e0575.cn/read.php?tid=5250448
第7期:❀坤和山水人家享现代奢华❀:
http://www.e0575.cn/read.php?tid=5209818
第6期:山水名家175平13万半包演绎新古典:
http://www.e0575.cn/read.php?tid=5196713
第5期:山水名家173方美式风格共50万全包:
http://www.e0575.cn/read.php?tid=5180619
第4期:岑草园240方带屋顶花园美式乡村共55万/ 缕缕春风贴意境:
http://www.e0575.cn/read.php?tid=5122713
第3期:赞成香林140方40万含地暖和新风系统 | 北欧混搭新古典:
http://www.e0575.cn/read.php?tid=5103387
第2期:长江越领140方23万全包 | 我迷何以笙箫默的北欧装修风:
http://www.e0575.cn/read.php?tid=5075910
第1期:鼎盛世家141方90万欧式新古典风 | 路遇宫廷式的奢华:
http://www.e0575.cn/read.php?tid=5069984
回复
淡定的心思
2025-12-09 16:17 绍兴
2楼
还比较实用
回复
纵横刹
2025-12-10 08:12 绍兴
3楼
好好看啊
回复
赵锐q创始
2025-12-10 08:12 绍兴
4楼
喜欢
回复
q3390279
2025-12-10 08:28 绍兴
5楼
这个价格,这个效果,可以接受
回复
回复内容:
首页
论坛
我的