登录
首页
论坛导航
家装帮忙团
正文
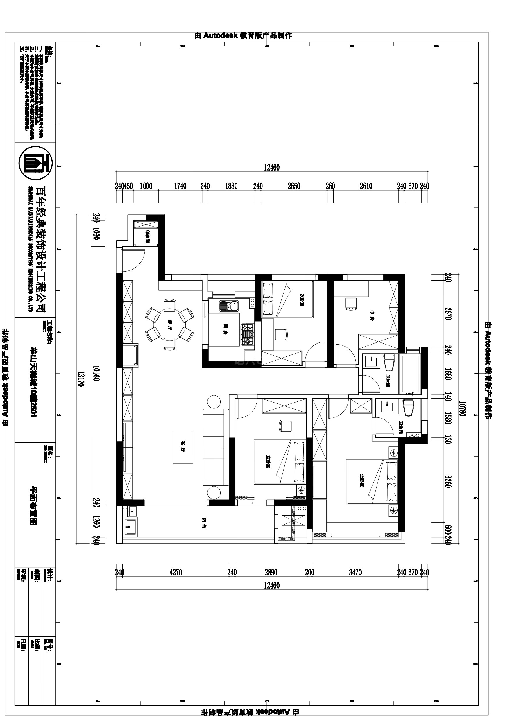
羊山天越府140㎡现代简约风更新平面布置图阶段
百年经典小胡
25-10-19 15:42 浙江
楼主
小区:羊山天越府10-2501风格:现代简约面积:140户型:四室一厅一厨两卫装修方式:全包全包造价:17万设计师:徐工
官方网站:
http://thome.e0575.com/s81
直达电梯
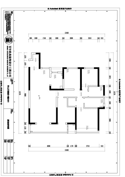
原始结构图
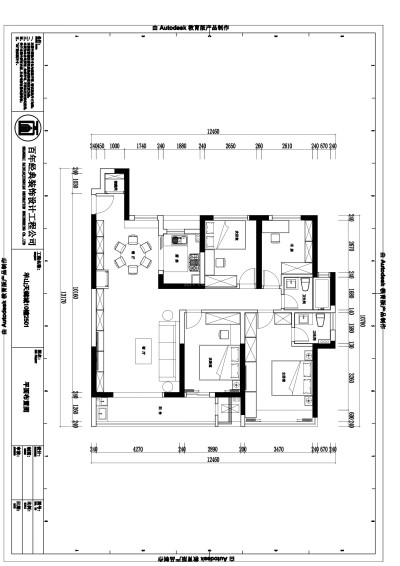
平面布置图
回复
正序看
倒序看
收藏它
发新帖
百年经典小胡
楼主
2025-10-19 16:24 浙江
1楼
原始结构图
回复
百年经典小胡
楼主
2025-10-19 16:25 浙江
2楼
平面布置图
回复
回复内容:
首页
论坛
我的