登录
简美与新中古风的碰撞
幸福的江江
25-09-30 16:27 绍兴
楼主
这套房子到手后一直闲空着,孩子也大了就想着怎么把这套房子折腾下,有了这个想法后开始物色装修公司了,

第一家是亲戚介绍的,设计师没有想法基本我们说什么他就按我们的要求来设计,虽然家是我们自己住很多习惯是于我们定,但是我也希望设计师能给到我们更好的建议,所以PS了,谢谢你们的付出。

第二家找了比较大的装修公司,方案和设计师还可以,李设计师人也好沟通,就是预算超出了太多,无奈腰包不太鼓只好舍弃,虽然没有合作成功还是要感谢你们的付出。

第三家是儿子同学介绍的,他家去年装修好了说这个老板好沟通设计师也不错,儿子去他同学家参观要了电话号码约好第二天去量房,第二天装修公司的老板带着他的设计师们比我们早到20分钟,量房时设计师大致问了情况,希望这个设计师能给不一样的设计方案。房子量好3天方案出来了,有好几处要改动,相对来说还是设计的比较符合我们的要求,第二次去看方案和预算,价格还能接受我们用大刀砍砍和磨磨基本在我们的心理价超一丢丢,看来我的心里预算是低了点,哈哈哈。
回复 
正序看 倒序看 收藏它 发新帖
幸福的江江楼主
2025-10-03 10:43 绍兴
1楼
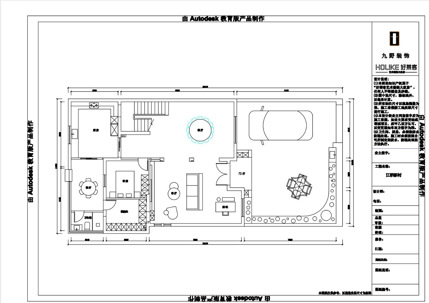
一楼平面图,客厅,两餐厅,厨房,储藏间,客房。


幸福的江江楼主
2025-10-03 10:47 绍兴
2楼
二楼平面图,小孩主卧,客房,书房


幸福的江江楼主
2025-10-03 10:48 绍兴
3楼
三楼平面图,主卧,书房,阳台


幸福的江江楼主
2025-10-03 11:24 绍兴
4楼
客厅效果图


幸福的江江楼主
2025-10-03 11:25 绍兴
5楼
茶室一角


幸福的江江楼主
2025-10-03 11:26 绍兴
6楼
餐厅


幸福的江江楼主
2025-10-03 11:26 绍兴
7楼
餐厅一角


蛋蛋蛋!
2025-10-09 09:10 绍兴
8楼
你好,可以参加我们的家装日记哦,获得好礼

https://www.e0575.cn/read.php?tid=11835215&ds=1#tpc

更多装修上的知识

可以添加小编微信哦


幸福的江江楼主
2025-10-09 10:49 绍兴
9楼
选了个日子,就这样我们开工了!








幸福的江江楼主
2025-10-09 10:52 绍兴
10楼
敲墙这块有的装修公司摘出来,九野装饰的徐总帮我们一起算进去了


未若柳絮因风起
2025-10-11 13:07 绍兴
11楼
您家设计费贵吗
幸福的江江楼主
2025-10-11 15:38 绍兴
12楼
未若柳絮因风起:您家设计费贵吗(2025-10-11 13:07)


不贵,徐老板给我们打折了。
幸福的江江楼主
2025-10-11 15:41 绍兴
13楼
继续发敲墙图片


幸福的江江楼主
2025-10-11 15:41 绍兴
14楼
继续发敲墙图片


幸福的江江楼主
2025-10-11 15:42 绍兴
15楼
继续发敲墙图片


幸福的江江楼主
2025-10-11 15:42 绍兴
16楼
继续发敲墙图片


幸福的江江楼主
2025-10-11 15:43 绍兴
17楼
继续发敲墙图片


幸福的江江楼主
2025-10-11 15:44 绍兴
18楼
继续发敲墙图片


幸福的江江楼主
2025-10-11 15:52 绍兴
19楼
房子 钢结构好多柱子需要包,顶也全部要吊 顶吊过后层高欠高,心塞塞。
九野装饰晓晓姐
2025-10-21 16:16 绍兴
20楼
未若柳絮因风起:您家设计费贵吗(2025-10-11 13:07)


您好!您家要做设计吗?
未若柳絮因风起
2025-10-22 09:32 绍兴
21楼
九野装饰晓晓姐:您好!您家要做设计吗?(2025-10-21 16:16)


谢谢我家已经在对接全屋定制了硬装完工了
回复内容:
首页
论坛
我的