登录
凤林府190平#法式轻奢风#更新油漆施工阶段
百年经典小胡
24-06-12 22:11 浙江
楼主
小区:凤林府面积:190方风格:法式轻奢风装修公司:百年经典装饰设计时间:2024年6月装修方式:全包格局:六室两厅一厨三卫设计师:徐工官方网站: http://thome.e0575.com/s81直达电梯

原始结构图 平面布置图 效果图 水电改造图 油漆施工阶段
回复 
正序看 倒序看 收藏它 发新帖
百年经典小胡楼主
2024-06-12 22:18 绍兴
1楼
原始结构图


百年经典小胡楼主
2024-06-12 22:19 绍兴
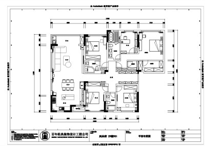
2楼
平面布置图


百年经典小胡楼主
2024-06-12 22:20 绍兴
3楼
效果图














百年经典小胡楼主
2024-07-30 07:47 绍兴
4楼
水电改造











百年经典小胡楼主
2025-11-08 16:43 浙江
5楼
油漆施工照片

















以禾禾禾禾
2025-12-06 15:40 绍兴
6楼
落地什么价格?
回复内容:
首页
论坛
我的